Weitefeld
Frühzeitige Beteiligung der Öffentlichkeit gem. § 3 Abs. 1 BauGB, Beteiligung der Behörden und sonstigen Träger öffentlicher Belange gem. § 4 Abs. 1 BauGB, Beteiligung der Nachbargemeinden gem. § 2 Abs. 2 BauGB
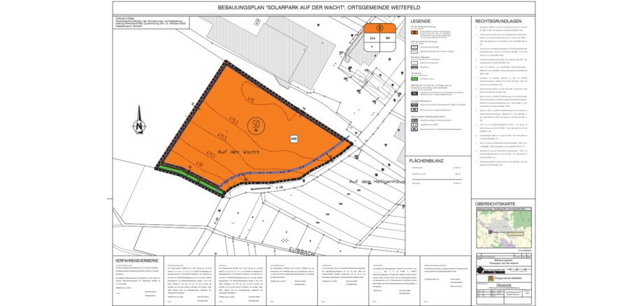
Bebauungspläne | VG Daaden-Herdorf